N.HOUSEの家
sum.A.IE 225 2F
ミニマムサイズの狭小地・都市型住宅
規格住宅を極める
sum.A.IE 225 2F
ミニマムサイズの狭小地・都市型住宅
規格住宅を極める
全ての仕様を吟味し規格化することで
コストパフォーマンスを極限まで高めた住宅
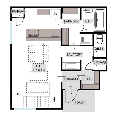
FLOOR PLAN ・PRICE 間取り・価格
施工面積: 74.56 ㎡(22.51 坪)
延床面積: 69.87 ㎡(21.09 坪)
価格:18,150,000円(税込)
※「FREE HALL」を破線のように間仕切りした場合の価格です。
DESIGN デザイン
外装デザインについては耐久性に優れるガルバリウム鋼板の屋根と外壁が標準。
お好みの色・素材をお選びいただき細部については、N.HOUSEがコーディネートいたします。
※ベースについては「KUROTUYA」「HAI」「GIN」についてもお選びいただけます。
※アクセントは各素材について異なる色もお選びいただけます。
組合せ例
インテリアデザインについては、お好みのデザインを既定の3つのイメージからお選びいただけます。
細部については N.HOUSEがコーディネートいたします。
◆ 3つのイメージについては微調整は可能です。
【例1】シンプルモダンを選択 ▶ より白の強いモダンにしたい
【例2】ナチュラルモダンを選択 ▶ 木の色を強調したい
【例3】ナチュラルモダンを選択 ▶ モダン和風テイストを取り入れたい
◆充実の標準仕様
・無垢の床、ハイドア、アクセントのエコカラット、スケルトン階段等
・既定の全ての資材については変更できません。
◆ 3つのイメージについて微調整は可能です。
【例1】シンプルモダンを選択
▶ より白の強いモダンにしたい
【例2】ナチュラルモダンを選択
▶ 木の色を強調したい
【例3】ナチュラルモダンを選択
▶ モダン和風テイストを取り入れたい
◆充実の標準仕様
・無垢の床、ハイドア、アクセントの
エコカラット、スケルトン階段等
・既定の全ての資材については
変更できません。
設備については、デザイン、機能を厳選。キッチン等は自由(有料)にお選びいただけます。
◆ 有料で自由にお選びいただける設備
◆ 範囲内で変更できる設備
◆ 変更できない設備
CONCEPT 商品の開発経緯とコンセプト
ウッドショック、世界情勢を起因とする資源価格高騰、国内インフレ等による住宅価格の高騰
▼
お客様とN.HOUSEが納得できて、取得金額を抑えた無理せずに取得できる商品(家)が必要
▼
▼
全ての仕様を吟味したうえで決定、規格化することでコストパフォーマンスを極限まで高める
▼
全てが備わった規格住宅を極める
▼
「sum.A.IE」誕生
ウッドショック、世界情勢を起因とする資源価格高騰、国内インフレ等による住宅価格の高騰
▼
お客様とN.HOUSEが納得できて、取得金額を抑えた無理せずに取得できる商品(家)が必要
▼
お客様が納得できる家、デザイン、性能、間取り、設備がよい、価格が安い、全てにおいてわかりやすい
N.HOUSEが納得できる家、自社のポリシーに沿う商品のクオリティを落とすことなく販売価格を抑える
▼
全ての仕様を吟味したうえで決定、規格化することでコストパフォーマンスを極限まで高める
▼
全てが備わった規格住宅を極める
▼
「sum.A.IE」誕生
sum.A.IEの規格定義
1. 既定の間取り、立体形状
2. 既定の性能
3. 使用する資材を固定
4. 使用する設備を固定
5. 1~4により設計図書・各申請図書がほぼ完成済み
▼
規格することにより「sum.A.IE」は12%のコストダウンを実現
sum.A.IEの規格定義
1. 既定の間取り、立体形状
2. 既定の性能
3. 使用する資材を固定
4. 使用する設備を固定
5. 1~4により設計図書・各申請図書が
ほぼ完成済み
▼
規格することにより「sum.A.IE」は
12%のコストダウンを実現




