N.HOUSEの家
crasu+
~ 暮らしにたくさんの付加価値を ~
PlanNo. C1-02
LDKが中心の縦動線の家
5種類の外観デザインからお選びいただけます。
「crasu+」には、3つのプランメニューがございます。
[ 変更による増加面積 ] × [ 既定の工事単価 ]
= [ 追加となる費用 ] (即時算出可)
※設計費の追加なし
[ 変更による増加面積 ] × [ 既定の工事単価 ]
+ [ 設計費440,000円 ] = [ 追加となる費用 ]
(即時算出可)
【 select+ PLAN 】
[ 変更による増加面積 ] × [ 既定の工事単価 ]
= [ 追加となる費用 ] (即時算出可)
※設計費の追加なし
【 PREMIUME PLAN 】
[ 変更による増加面積 ] × [ 既定の工事単価 ]
+ [ 設計費440,000円 ] = [ 追加となる費用 ]
(即時算出可)
※現在、PREMIUM PLAN の受付を休止しております。 あらかじめご了承ください。
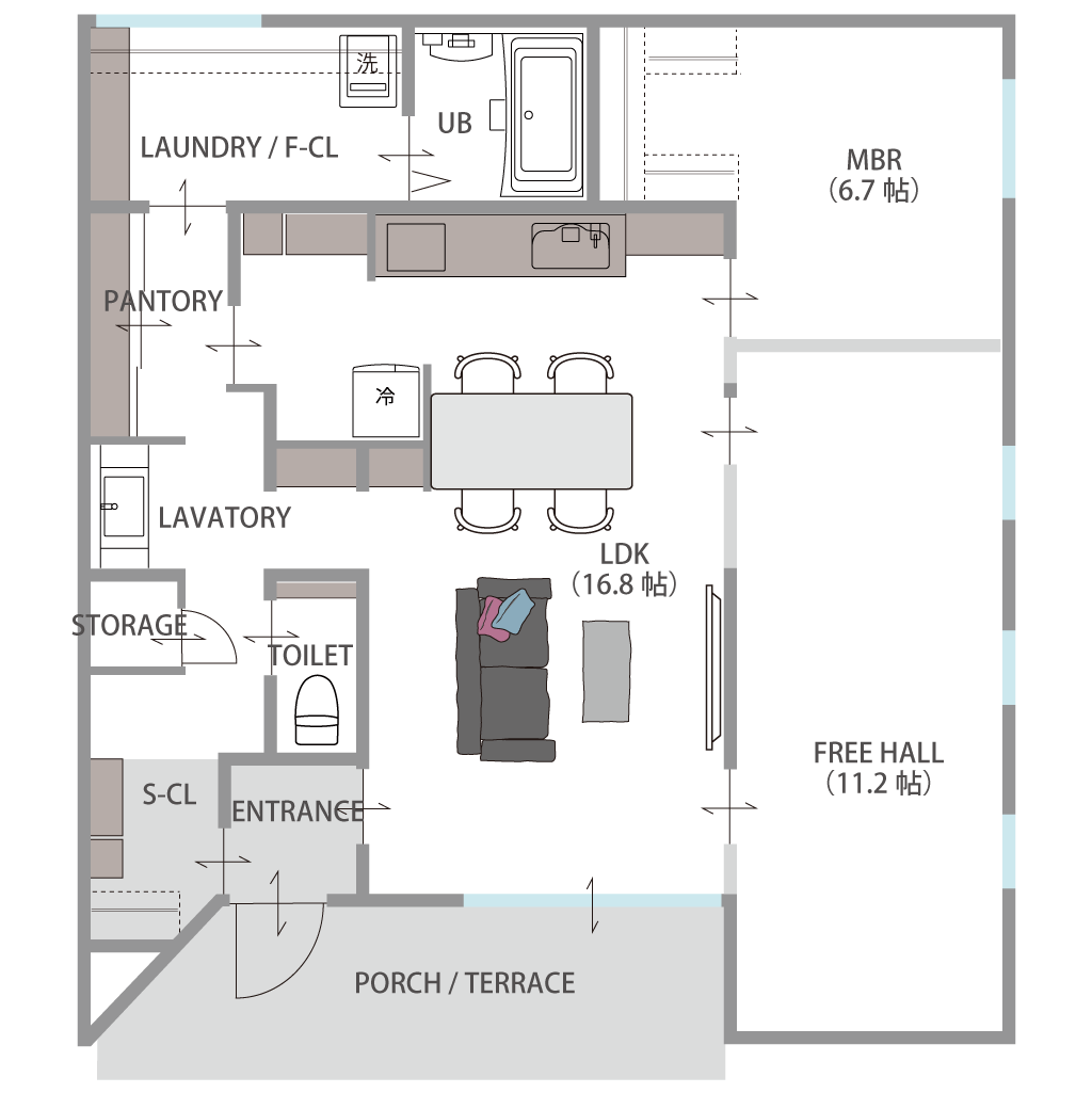
PLAN 間取り | I 型 LDK / 3LDK
DESIGN 外観
IDEA 間取りの考え方
住人とその他で動線を分ける
帰宅時にまず何をする?
洗濯を同じ部屋で完結させる
見せないながらも、アクセスしやすい
歩数を最小限にする

「FREE HALL」部分はスケルトンインフィル
家は数十年に渡り住み続けます。時間の経過と共に変化し続ける常識、ライフスタイル、家族構成等による間取りに対するニーズの変化に対応しやすいスケルトンインフィルという考え方を取り入れています。
10年後
住人構成:夫婦+子3人(長男12才・長女9才・次男8才)
子供が成長しそれぞれに個室を与えることに。
FREE HALLの一部を個室化。
25年後
住人構成:夫婦
3人の子は、成人・独立。それぞれの生活の拠点に目途がつき
夫婦2人の為だけの間取りへ
「FREE HALL」部分はスケルトンインフィル
家は数十年に渡り住み続けます。時間の経過と共に変化し続ける常識、ライフスタイル、家族構成等による間取りに対するニーズの変化に対応しやすいスケルトンインフィルという考え方を取り入れています。
10年後
住人構成:夫婦+子3人
(長男12才・長女9才・次男8才)
子供が成長しそれぞれに個室を与えることに。
FREE HALLの一部を個室化。
25年後
住人構成:夫婦
3人の子は、成人・独立。それぞれの生活の拠点に目途がつき
夫婦2人の為だけの間取りへ
【 select+ PLAN 】でご要望にお応えできること (規定範囲内の変更)※設計費の追加なし
LDKの増床
※2階建の場合これに伴い
2Fも増床します。
※デザイン・構造・設備等の専門的な設計要素を踏まえて設計士が
範囲内か否かを総合的に判断致します。
【 価格の計算方法 】
床面積1.0 ㎡あたり 198,000 円(税込)をご加算ください。
※198,000 円/ ㎡ = たたみ1 帖あたり327,927 円となります。
例1: 個室が4 つ欲しい「FREE HALLの増床」に該当
例1: 個室が4 つ欲しい
「FREE HALLの増床」に該当
増床面積
0.91m×10.01m = 9.1091 ㎡
追加となる費用
9.1091 ㎡ × 198,000 円 =1,803,601 円
施工面積計算
1,803,601 円 × 1.08(施工面積計算用係数)
例2: 1階に部屋が欲しい「1Fに個室を増床」に該当
例2: 1階に部屋が欲しい
「1Fに個室を増床」に該当
増床面積
2.73m × 4.55m = 12.4215 ㎡
追加となる費用
12.4215 ㎡ ×198,000 円= 2,459,457 円
施工面積計算
2,459,457 円 × 1.08(施工面積計算用係数)




